*** Luxurious villa situated on elevated ground at Lakeshore View, Sentosa Cove, towering over its neighbours with breathtaking sea views, city lights and MBS view
- Newly refurbished and tastefully designed 5-levels modern bungalow with a signature rooftop swimming pool and a glass home lift
- Corner hillside villa with 5 delightful bedrooms ensuites, 1 helper’s room, 1 office, 1 gym, 1 study area and 1 family area with a large wine cellar
- Super size master bedroom with a luxurious bathroom, steam bath and walk-in wardrobe
- Lavish living and dining area, swimming pool on the top floor with unblocked view
- Hillside private low-maintenance garden with a pavilion
- Well fitted wet and dry kitchen with brand new appliances
- New fixture and new fittings
- Basement parking for more than 5 cars
- Stylish interiors completed with extravagant finishes and fittings
- Peaceful neighbourhood with lots of greeneries and privacy
* Main door faces S-E with main gate, living room and master bedroom faces N-E
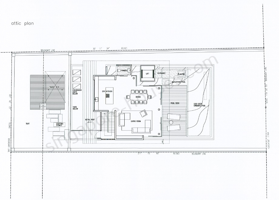
ATTIC/ LEVEL 5 (POOL, LIVING, DINING AND DRY KITCHEN) :
LEVEL 4 (MASTER BEDROOM, FAMILY AREA & WET KITCHEN):
LEVEL 3 (4 BEDROOMS & GARDEN):
LEVEL 2 (OFFICE & GYM):
LEVEL 1 (ENTRANCE LOBBY & CARPARK) :





































