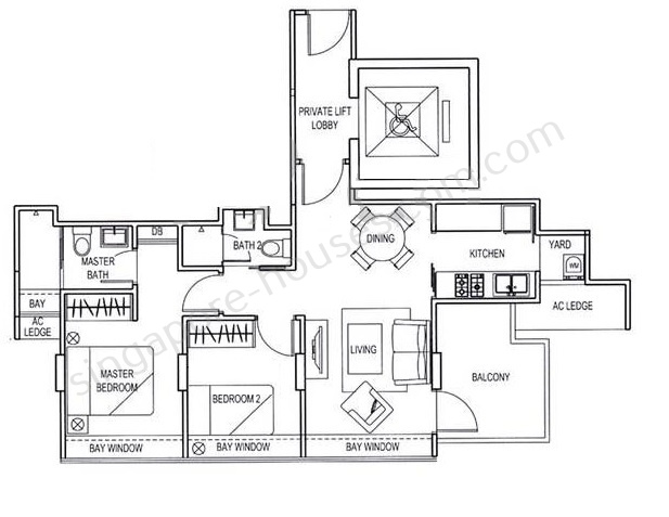
– Size 764sf with rectangular layout
– 2 bedrooms and 2 bathrooms with a good size balcony
– Low floor unit with good natural light
– No bomb shelter/No utility room
– Private lift lobby
– Living room faces East. Main Door faces West
* Located at 11 Lincoln Road, Iridium (45 units built in 2009) is just moments from Goldhill Plaza, United Square shopping mall, Novena Square and Novena MRT and also with direct proximity to park and playground

















